1505 Robinhood Trail
1505 Robinhood Trail
Gainesville, GA 30501
Sold! - $379,250
3 bedrooms
2 bathrooms
2,168 sqft
MLS #: 7683966
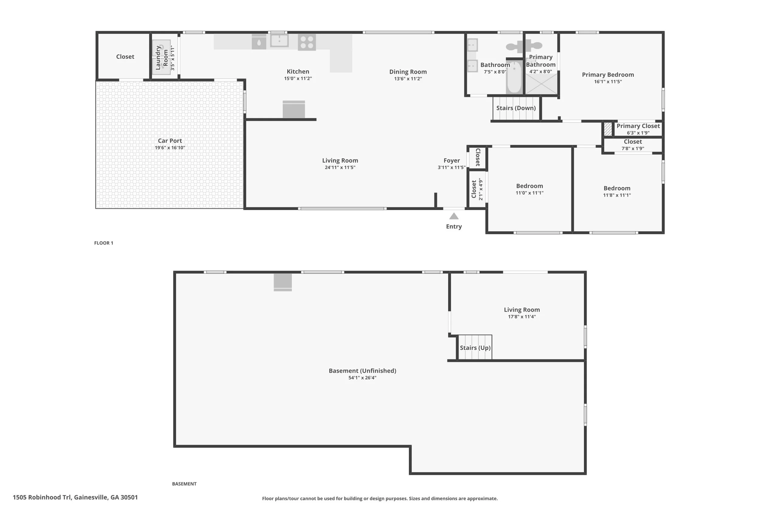
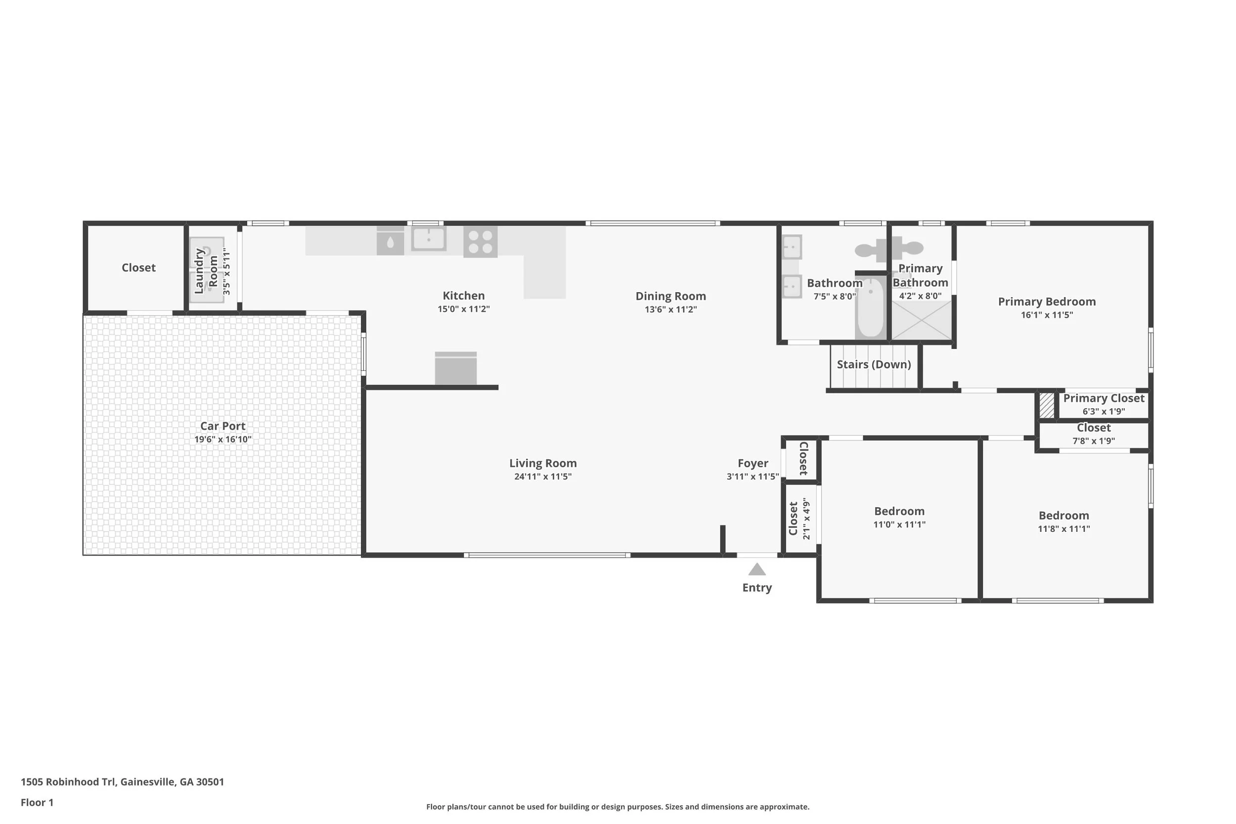
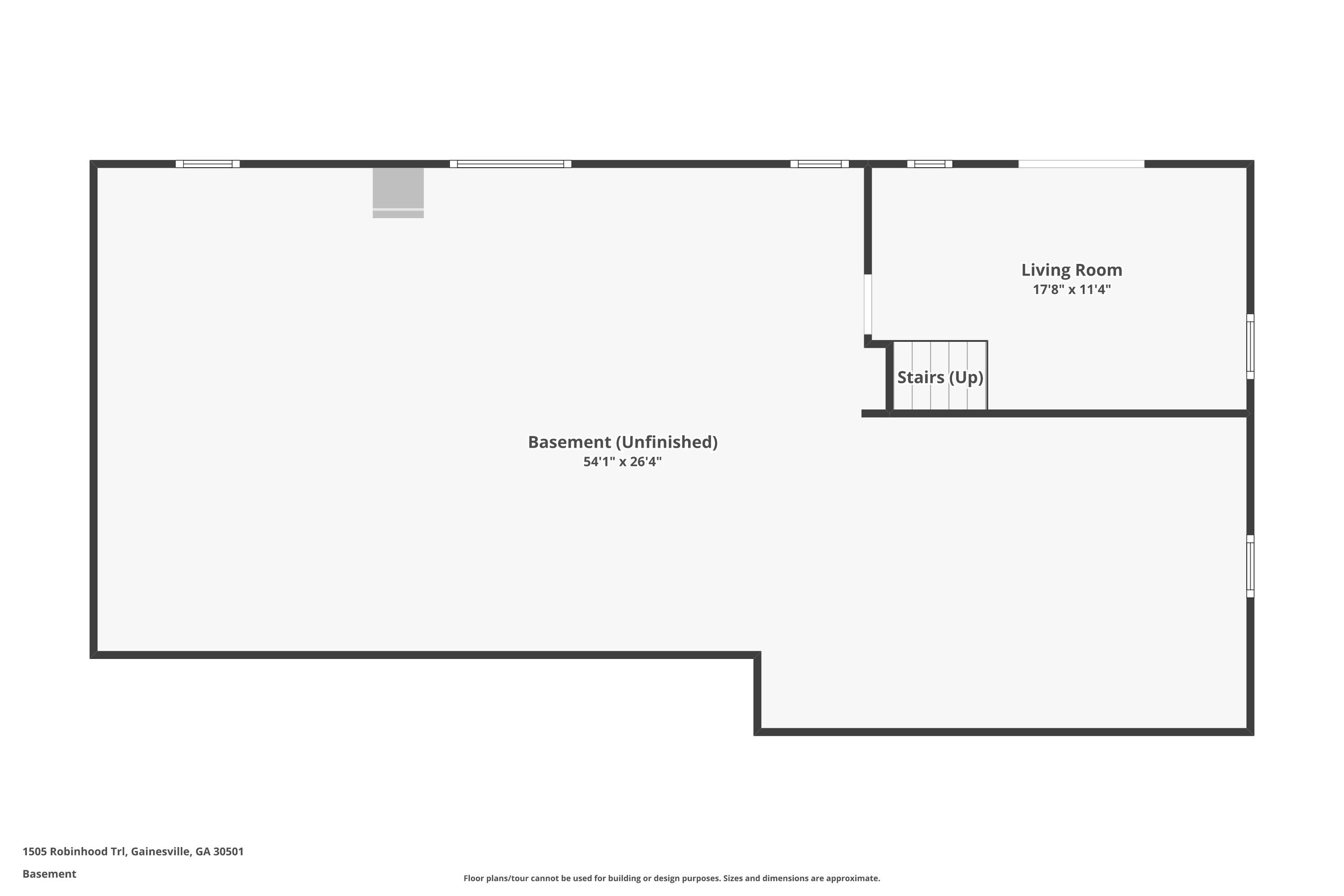
Prime Gainesville Living — Location, Value, and Upgrades All in One! You’ll be hard-pressed to find a home this dialed-in, this move-in ready, and this perfectly located at this price. Just one mile from Northeast Georgia Medical Center and minutes to Downtown Gainesville, this beautifully updated brick ranch sits on a spacious, wide-feeling lot in one of the most convenient pockets of the city. Step inside to an inviting open-concept great room, dining area, and upgraded kitchen, ideal for everyday living and entertaining. The kitchen stands out with granite countertops, quality wood cabinetry, a stylish tile backsplash, upgraded stainless steel appliances, and a layout that truly maximizes function. The main level features three comfortable bedrooms, two renovated bathrooms, and oak hardwood floors throughout—timeless, warm, and low-maintenance. The basement is a major bonus: a large finished den/playroom (perfect as a media room, game room, or hobby retreat) with walk-out access to the patio and backyard. The massive unfinished section offers endless potential—additional bedrooms, a workshop, gym, or future expansion. Recent upgrades include new energy-efficient windows, a new roof, and an HVAC system serviced summer 2025 for peace of mind. The yard feels generously sized, offering space to play, garden, or simply relax. This home is clean, turnkey, and genuinely cared for—a hard-to-find combination in such a prime Gainesville location. Don’t miss the chance to make it yours!
Images
Videos
Floor Plans
Interactive Map
Location
Contact us.
wligas@kw.com
(404) 291-4167
3325 Paddocks Pkwy., Suwanee, GA 30024
